Aktuelle Objekte
Baugrundstück mit Vorbescheid für zwei Dreispänner (alternativ auch 34 Mikroapartments möglich!)




ImmoNr
6275
Objektart
Grundstück
Objekttyp
Wohnen
Vermarktungsart
Kauf
PLZ
85375
Ort
Neufahrn bei Freising
Grundstücksgröße
ca. 1.804 m²
Kaufpreis
2.200.000,00 €
Käufer-Provision
3,57 % inkl. MwSt. (3,00 % netto)
Region / Stadtteil (Mehrfachauswahl möglich)
Neufahrn bei Freising (Gemeinde), Fürholzen, Kreis Freising, Giggenhausen, Grüneck bei Freising, Hetzenhausen, Massenhausen, Oberbayern, Mintraching, Kreis Freising, Moosmühle, Oberbayern, Neufahrn (Freising)
Beschreibung
Attraktives Baugrundstück mit Entwicklungspotenzial – Genehmigte Dreispänner & Projektierung für Studierendenapartments nahe TU GarchingAuf diesem großzügigen Grundstück mit ca. 1.804 m² Fläche bietet sich eine außergewöhnliche Entwicklungschance im attraktiven Umfeld von Garching.
1. Konzept 1: Zwei Dreispänner
Ein Bauvorbescheid für zwei Dreispänner liegt bereits vor – die geplante Bebauung fügt sich harmonisch in die bestehende Nachbarschaft ein, die überwiegend aus Ein- und Reihenhäusern besteht.
Eckdaten:
- 6 Einheiten
- Wohnfläche pro Einheit: ca. 141,6 m²
- Wohnfläche gesamt: ca. 856,2 m²
- 12 Pkw-Stellplätze
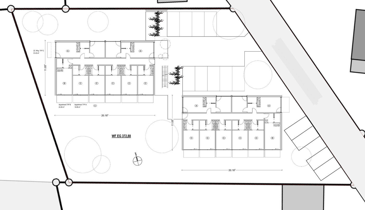
2. Konzept 2: Mikroapartments für Studierende
Darüber hinaus besteht ein spannendes alternatives Nutzungskonzept: In positiven Vorgesprächen wurde eine Projektierung für bis zu 34 Studierendenapartments befürwortet. Eine detaillierte Architektenplanung mit verschiedenen Wohnungstypen liegt bereits vor und kann übernommen werden.
Eckdaten:
- 34 Einheiten
- Wohnfläche pro Einheit: zwischen ca. 17,5 m² und ca. 31,9 m²
- Wohnfläche gesamt: ca. 856,2 m²
Die Lage überzeugt durch ihre hervorragende Verkehrsanbindung und die Nähe zur Technischen Universität Garching, was das Grundstück insbesondere für studentisches Wohnen oder moderne Wohnkonzepte äußerst attraktiv macht.
Dieses Grundstück bietet Investoren, Bauträgern und Projektentwicklern eine hervorragende Gelegenheit, in einem gefragten Umfeld ein zukunftsfähiges Wohnprojekt zu realisieren.
Lage
Das Grundstück befindet sich in bevorzugter Wohnlage von Neufahrn bei Freising, im Ortsteil Mintraching. Die ruhige, gewachsene Nachbarschaft ist geprägt von gepflegten Einfamilien- und Reihenhäusern und bietet ein familienfreundliches Umfeld mit hoher Lebensqualität im Münchner Norden.Die verkehrsgünstige Lage macht den Standort besonders attraktiv: Die S-Bahn-Station Neufahrn (S1) ist in wenigen Minuten erreichbar und bietet eine direkte Verbindung in die Münchner Innenstadt sowie zum Flughafen. Über die Autobahnen A9 und A92 bestehen zudem schnelle Verbindungen nach München, Freising und Garching.
Ein besonderer Pluspunkt ist die Nähe zur Technischen Universität München in Garching – nur etwa zehn Fahrminuten entfernt. Damit eignet sich der Standort ideal für studentisches Wohnen, Berufspendler oder Familien, die die Verbindung von ruhigem Wohnen im Grünen und der Nähe zur Stadt zu schätzen wissen.
Ausstattung
- Grundstücksgröße: ca. 1.804 m²- Bauvorbescheid für zwei Dreispänner vorhanden
- Alternativ: Projektierung für 34 Studierendenapartments möglich
- Realisierbare Wohnfläche: ca. 856,18 m²
- Architektenplanung bereits ausgearbeitet
- Ruhige, gewachsene Wohngegend mit EFH- und RH-Bebauung
- Exzellente Anbindung und Nähe zur TU Garching
Sonstige Angaben
Alle in diesem Exposé verwendeten Angaben beruhen auf Informationen von Dritten (z.B. Eigentümer, Hausverwaltung, etc.) und daher freibleibend und ohne jegliche Gewähr. Zahlenangaben sind immer als ca-Angaben zu verstehen. Irrtum, Änderungen, Zwischenverkauf oder Zwischenvermietung bleiben vorbehalten. Die Bekanntgabe der Objektadresse und von Objektdaten geschieht unter ausdrücklichem Hinweis auf unsere Provisionsforderung im Fall des Ankaufs. Die Höhe der Käuferprovision entnehmen Sie den Eckdaten dieses Exposés. Mit Übersendung des Exposés und Bekanntgabe der Objektadresse kommt ein Maklervertrag zustande. Sie wurden hierbei auf das Recht hingewiesen, binnen vierzehn Tagen ohne Angabe von Gründen diesen Vertrag zu widerrufen. Um ein bestehendes Widerrufsrecht auszuüben, genügt eine schriftliche Erklärung an EDE-Invest GmbH & Co. KG, Bavariaring 18, 80336 München. Möglicherweise haben Sie bei Erhalt des Exposees wirksam auf das Widerrufsrecht verzichtet. Haben Sie hingegen verlangt, dass unsere Dienstleistungen während der Widerrufsfrist beginnen sollen, ohne vorher auf das Widerrufsrecht zu verzichten, so haben Sie uns im Fall des Widerrufs einen angemessenen Betrag zu zahlen, der dem Anteil der bis zu dem Zeitpunkt, zu dem Sie uns den Widerruf erklären, bereits erbrachten Dienstleistungen im Vergleich zum Gesamtumfang der im Vertrag vorgesehenen Dienstleistungen entspricht. Ihr Widerrufsrecht erlischt vorzeitig, wenn wir auf Ihren ausdrücklichen Wunsch hin tätig geworden sind und der Vertrag vollständig erfüllt ist, bevor Sie Ihr Widerrufsrecht ausgeübt haben. Verpflichtungen zur Erstattung von Zahlungen müssen innerhalb von 30 Tagen erfüllt werden. Die Frist beginnt für Sie mit der Absendung Ihrer Widerrufserklärung, für uns mit deren Empfang.Gewerbeerlaubnis gemäß § 34c GewO erteilt durch Aufsichtsbehörde gemäß § 34c GewO: Kreisverwaltungsreferat München, Ruppertstr. 19, 80466 München
Online-Streitbeilegung: http://ec.europa.eu/consumers/odr/

