Aktuelle Objekte
Grundstück mit Albestand in Kolbermoor





ImmoNr
6295
Objektart
Grundstück
Vermarktungsart
Kauf
PLZ
83059
Ort
Kolbermoor
Wohnfläche
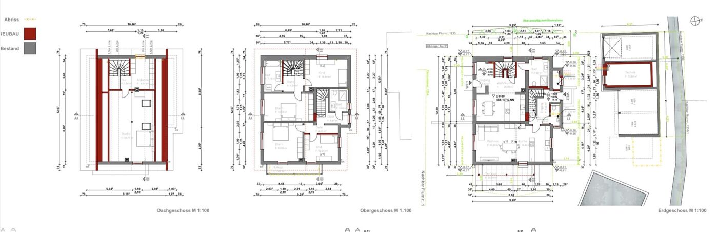
ca. 200 m²
Grundstücksgröße
ca. 1.094 m²
Anzahl Zimmer
8
Anzahl Badezimmer
3
Baujahr
2026
Energieausweis
nicht erforderlich
Region / Stadtteil (Mehrfachauswahl möglich)
Rosenheim (Kreis)
Beschreibung
### Flexibles Wohnkonzept im Landkreis RosenheimIn Rosenheim (Kreis) präsentiert sich dieses Anwesen mit einem Altbestand als attraktives Wohnobjekt, das sowohl als Ein- als auch Zweifamilienhaus genutzt werden kann. Der Altbestand kann nicht abgerissen werden und ist vollkommen entkernt
Das Grundstück umfasst etwa 1.094 m², auf dem ein großzügiger Garten den privilegierten Außenbereich darstellt und Raum für individuelle Gestaltung bietet. Diese Fläche eignet sich besonders für Familien oder Paare, die Wert auf einen privaten Rückzugsort im Freien legen.
Das Haus, vereint gute Substanz mit modernen Neubau-Aspekten, da es vollständig saniert wird, einschließlich Elektrik, Dach und Fassade. Die Dreifachverglasung der Fenster und eine moderne Wärmepumpe sorgt für eine nachhaltige und effiziente Beheizung.
Mit drei Badezimmern und einem separaten WC ist für ausreichend Komfort gesorgt, selbst bei größerem Platzbedarf. Die Raumaufteilung kann individuell gestaltet werden, um persönlichen Anforderungen gerecht zu werden. Auch ohne Balkon oder Terrasse ist der Außenbereich in Form des Gartens hervorragend nutzbar.
Dieses Grundstück mit Altbestand ist für den Kauf bestimmt und stellt eine interessante Option für Familien, Paare und Pendler dar, die eine Nähe zu Rosenheim mit den Vorzügen eines sanierten Hauses kombinieren möchten. Hier bietet sich die Gelegenheit, ein modernes Zuhause in einer begehrten Lage zu finden, das ganz nach Ihren Vorstellungen gestaltet werden kann.
Lage
Lagebeschreibung der Immobilie - Zwischen Kolbermoor und Bad AiblingDie Immobilie befindet sich in einer strategisch günstigen Lage im Landkreis Rosenheim, zwischen Kolbermoor und Bad Aibling. Diese Region ist geprägt von einer vorteilhaften Mischung aus städtischem Komfort und naturnaher Umgebung. Die Nähe zu den Städten bietet den Bewohnern die Möglichkeit, die Annehmlichkeiten städtischen Lebens zu genießen, während gleichzeitig der Zugang zu erholsamen Naturlandschaften gewährleistet ist.
Die gute Verkehrsanbindung stellt einen wesentlichen Vorteil dieser Lage dar. Durch die Anbindung an die A8 und mehrere Bundesstraßen ist die Region hervorragend in das überregionale Straßennetz integriert. Dies eröffnet Pendlern und Vielreisenden eine angenehme Mobilität und einen schnellen Zugang zu nahe gelegenen Städten wie München oder Salzburg. Zudem sind die öffentlichen Verkehrsmittel, einschließlich der Bahnverbindung, bequem erreichbar und ermöglichen eine flexible Fortbewegung.
In unmittelbarer Nähe zur Immobilie bieten verschiedene Parks und Naturschutzgebiete eine ideale Möglichkeit zur Erholung im Freien. Der Mangfallkanal und der dazugehörige Landschaftspark zählen zu den beliebten Freizeitgebieten, die sich bestens für Wanderungen oder Fahrradtouren eignen. Die grüne Umgebung wird durch zahlreiche Freizeitmöglichkeiten, wie beispielsweise der Kurpark von Bad Aibling, ergänzt und bietet somit ein ideales Umfeld für Familien und Naturliebhaber.
Rosenheim und die gesamte Region besitzen eine historische und kulturelle Vielfalt, die sich in zahlreichen Sehenswürdigkeiten und Veranstaltungen widerspiegelt. Der Rosenheimer Lokschuppen, das Kultur- und Kongresszentrum sowie verschiedene traditionelle Feste und Märkte ziehen Besucher aus der gesamten Region an und bereichern das Leben vor Ort.
Ausstattung
Mögliche Bauleistungen- Neubaumaßnahmen noch individuell anpassbar
- Bodenbeläge: anpassbar
- Fenster-Art: Holz.Alu Dreifachverglasung
- Heizungstyp: Bodenheizung und Wandheizung
- Außenbereiche: Garten
- Weitere Ausstattungsmerkmale: Wärmepumpe
- Renovierungen: Elektrik, Dach, Fassade 2026
- Objekttyp: Mehrfamilienhaus oder Einfamilienhaus
- Wohnfläche: ca. 200 m²
- Garagen
- Aussenstellplätze
Sonstige Angaben
Alle in diesem Exposé verwendeten Angaben beruhen auf Informationen von Dritten (z.B. Eigentümer, Hausverwaltung, etc.) und daher freibleibend und ohne jegliche Gewähr. Zahlenangaben sind immer als ca-Angaben zu verstehen. Irrtum, Änderungen, Zwischenverkauf oder Zwischenvermietung bleiben vorbehalten. Die Bekanntgabe der Objektadresse und von Objektdaten geschieht unter ausdrücklichem Hinweis auf unsere Provisionsforderung im Fall des Ankaufs. Die Höhe der Käuferprovision entnehmen Sie den Eckdaten dieses Exposés. Mit Übersendung des Exposés und Bekanntgabe der Objektadresse kommt ein Maklervertrag zustande. Sie wurden hierbei auf das Recht hingewiesen, binnen vierzehn Tagen ohne Angabe von Gründen diesen Vertrag zu widerrufen. Um ein bestehendes Widerrufsrecht auszuüben, genügt eine schriftliche Erklärung an EDE-Invest GmbH & Co. KG, Bavariaring 18, 80336 München. Möglicherweise haben Sie bei Erhalt des Exposees wirksam auf das Widerrufsrecht verzichtet. Haben Sie hingegen verlangt, dass unsere Dienstleistungen während der Widerrufsfrist beginnen sollen, ohne vorher auf das Widerrufsrecht zu verzichten, so haben Sie uns im Fall des Widerrufs einen angemessenen Betrag zu zahlen, der dem Anteil der bis zu dem Zeitpunkt, zu dem Sie uns den Widerruf erklären, bereits erbrachten Dienstleistungen im Vergleich zum Gesamtumfang der im Vertrag vorgesehenen Dienstleistungen entspricht. Ihr Widerrufsrecht erlischt vorzeitig, wenn wir auf Ihren ausdrücklichen Wunsch hin tätig geworden sind und der Vertrag vollständig erfüllt ist, bevor Sie Ihr Widerrufsrecht ausgeübt haben. Verpflichtungen zur Erstattung von Zahlungen müssen innerhalb von 30 Tagen erfüllt werden. Die Frist beginnt für Sie mit der Absendung Ihrer Widerrufserklärung, für uns mit deren Empfang.Gewerbeerlaubnis gemäß § 34c GewO erteilt durch Aufsichtsbehörde gemäß § 34c GewO: Kreisverwaltungsreferat München, Ruppertstr. 19, 80466 München
Online-Streitbeilegung: http://ec.europa.eu/consumers/odr/

